Niverville High School to Be Built in Two Phases

Niverville High School to Be Built in Two Phases

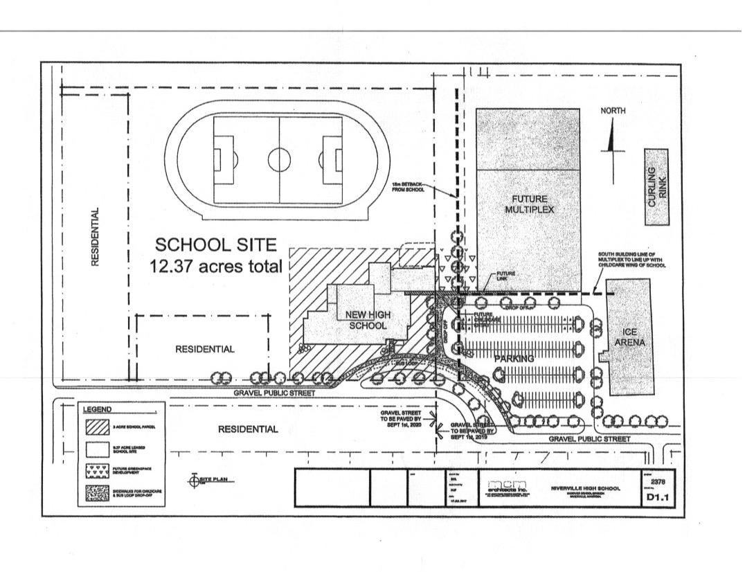
On January 19, Hanover School Division announced the start of the tender process for the new high school set to be built in Niverville. The new 66,700-square-foot campus will serve 450 students from Grades 9 to 12, with the ability to expand its capacity for up to 550 students.

In an agreement with the Town of Niverville, construction will be completed in a two-phase process. The first phase, slated to be completed for September 2019, will include everything except the drama room, band room, and child-are facilities. Those spaces not completed during the first phase will be completed as part of the second phase, which will be ready by the spring of 2020.

The two-phase process allows the Town of Niverville more time to secure funding for the proposed Community Resource Centre, previously known simply as the Niverville Multiplex, which is set to be developed alongside the new school to create a community campus.

“A new high school for Niverville is long overdue,” says Shannon Martin, MLA for Morris. “The addition of a new high school will help ensure that Niverville lives up to its motto of Where You Belong.”

More details will be forthcoming in The Citizen’s February edition.