Construction Tender Awarded for Niverville High School

The tendering process is complete for Hanover School Division’s new Niverville high school. After receiving several competitive bids, the contract has been awarded to Red Lake Construction.

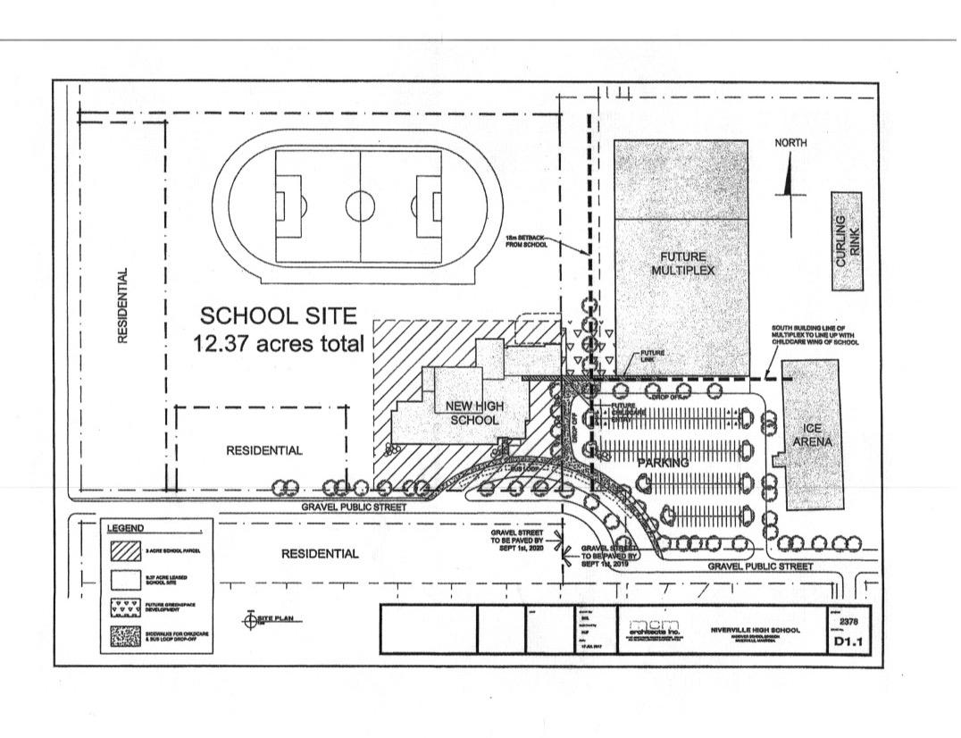
The tendering process is complete for Hanover School Division’s new Niverville high school. After receiving several competitive bids, the contract has been awarded to Red Lake Construction. The company will serve as general contractor for the 66,700-square-foot school. Construction is set to begin shortly, and is scheduled to be completed in 70 weeks, ready for doors to open in September 2019. Red Lake Construction’s bid came in at $18,450,000.
 

The school will accommodate 450 students from Grades Nine through 12 and will feature regular classrooms, science labs, an art room, and other specialized spaces including a large library, computer rooms, a life-skills suite, resource areas, a multipurpose room, a band room, a drama room, a fitness room, and a large gymnasium. The school will also include an integrated childcare centre with space for 74 children.

As previously reported, the school will be constructed in two phases. Although the main portion of the facility will open in September 2019, the band, drama, and childcare spaces are expected to be completed later in the school year and ready for us by the spring.

An official sod-turning ceremony will take place on Friday, March 23.